EINBAU EINES GESCHLOSSENEN WC-SYSTEMS
In modernen Reisezugwagen ist der Einbau eines geschlossenen WC-Systems Standard und für Neufahrzeuge auch verpflichtend vorgeschrieben. In Verbindung mit partnerschaftlichen Fachwerkstätten bieten wir die komplexe Modernisierung auch der Sanitärabteile bei Personen-, Speise- und Schlafwagen an. Dabei kommt ein mit Gebrauchsmustern geschütztes WC-/Sanitärabteil zum Einsatz.
Das ästhetische und funktionale Abteil kann in verschiedenen Varianten eingebaut werden und für elektromagnetische sowie Pedalspülung ausgelegt sein. Das Material ist leicht pflegbares dauerhaftes Plastik.
Die WC-Einrichtung sowie die Anschlussstutzen für Wassereinspeisung zum Hauptbehälter sowie Abpumpen der Abwässer sind westeuropäischen Ursprungs und entsprechen den einschlägigen UIC-Normen, so dass sie in den westeuropäischen Einsatzländern kompatibel mit den dort vorhandenen Anlagen sind.
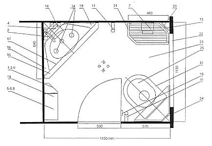
| 1- Piktogramme | 6- Abfallkorb | 11- Halterung | 16- Spiegelecke | 21- Regal |
| 2- Wasserkran | 7- WC-Papierhalter | 12- WC-Sitz | 17- Lichtleiste | 22- Fensterverkleidung |
| 3- Kranbedienung | 8- WC-Sitz-Papier | 13- Aschenbecher | 18- Ablegeleiste | 23- Fussboden |
| 4- Seifenschale | 9- Steckdose | 14- Beleuchtung | 19- Wandschrank | 24- WC-Ecke |
| 5- Handtuchbehälter | 10- Kleiderhaken | 15- Waschbecken | 20- Regalecke | 25- WC |